昇降棟付きです。資材置き場の倉庫をお探しの方や、軽作業工場をお探しの方にお勧めです。
更新日/2025年12月13日
お問い合わせ番号/ 2872
(一棟)倉庫
4,200万円
利回り:- 大阪府枚方市星丘1丁目
- 建物構造/階建
- 鉄骨造/2階建
- 築年月
- 【昭和60年】1985年03月 / 築40年
- 最寄駅
-
- 京阪電気鉄道交野線
- 星ケ丘駅徒歩5分
- 京阪電気鉄道交野線
- 宮之阪駅徒歩14分
- 京阪電気鉄道交野線
- 村野駅徒歩15分
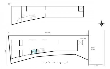
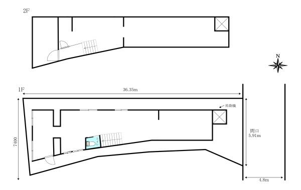
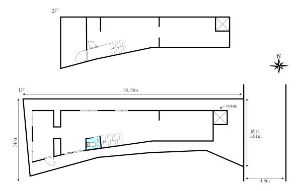
- 間取り/面積
-
- 間取り
- -
- 土地面積
- 192.59m2 / 58.25坪
- 延床面積
- 115.49m2 / 34.93坪
- 延床面積1F
- -
- 延床面積2F
- -
- 延床面積3F
- -
オススメ
- 現行利回り、現行収入
-
- 現行利回り
- -
- 現行収入
- -
- 利回り(想定)、想定収入
-
- 利回り(想定)
- -
- 想定収入
- -
- オーナーチェンジ
- -
- 事業用現況
- 空き
- 事業用 引き渡し状態
- -
- 事業用備考
- -
- 所在地
- 大阪府枚方市星丘1丁目
- 交通
-
京阪電気鉄道交野線星ケ丘駅 徒歩5分
京阪電気鉄道交野線宮之阪駅 徒歩14分
京阪電気鉄道交野線村野駅 徒歩15分
京阪電気鉄道京阪線枚方市駅 徒歩19分
- 土地面積
- 192.59m2
- 土地面積(坪)
- 58.25坪
- 建物延床面積
- 115.49m2
- 建物延床面積(坪)
- 34.93坪
- 間取り
-
階数 区分 広さ - リフォーム
- -
-
キッチン:-
浴槽:-
トイレ:-
壁:-
床:-
全室:-
その他:-
洗面所:-
給湯器:-
給排水管:-
内装全面:-
外壁:-
屋根:-
その他:- - リノベーション
- -
- - 駐車場
-
- 駐車可能台数
- 無-
- 駐車場所
- -
- 分譲駐車場
- -
- 駐車料金
- -
- 税
- -
- タイプ
- -
- 公共設備
-
- ガス
- 個別プロパン
- 水道
- 公営水道
- 汚水
- 公共下水
- 雑排水
- 公共下水
- 学校区
-
- 小学校区
- 桜丘小学校 徒歩23分
- 中学校区
- 桜丘中学校 徒歩22分
- 地目
- 宅地
- 地勢
- 平坦
- 最適用途
- -
- 建ぺい/容積率
- 60%/192%
- 引渡時期
- 相談
- 用途地域
- 準住居地域
- - 都市計画
- 市街化区域
- 建築許可理由
- -
- 建築確認番号
- -
- 接道状況 他
-
- 向
- 一方
- 角地
- -
- 公道
- 東
- 幅員
- 4.80m
- 接面
- 5.90m
- 私道
-
- 私道
- -
- 持分
- -
- 面積(区分)
- -
- 面積
- -
- 面積(単位)
- -
- セットバック面積
-
- 状態
- -
- 幅
- -
- 面積
- -
- 土地権利
-
- 権利
- 所有権
- 備考
- -
- 借地
-
- 借地期間条件
- -
- 借地権契約期間
- --
- 借地権満了日
- -
- 地代
- -
- 権利金
- -
- 再建築
- -
- 国土法届出
- 不要
- その他制限事項
- 高度地区
備考:上水配管が隣地敷地通過して引き込みされています - フラット利用
- -
- 手付金保証
- -
- 町会費
- --
- 備考
- -
- 取引態様
- 専任
(一社)大阪府宅地建物取引業協会
(公社)近畿地区不動産公正取引協議会加盟
(公社)近畿地区不動産公正取引協議会加盟




















