■丸ノ内線「本郷三丁目」駅 徒歩7分!!
■3沿線利用可能♪
更新日/2026年03月07日
お問い合わせ番号/ 2885
(一棟)ビル
83,800万円
利回り:- 東京都文京区本郷3丁目
- 建物構造/階建
- 鉄骨鉄筋コンクリート造/6階建
- 築年月
- 【平成21年】2009年09月 / 築16年
- 最寄駅
-
- 東京地下鉄丸ノ内線
- 本郷三丁目駅徒歩8分
- 東京都大江戸線
- 本郷三丁目駅徒歩8分
- 中央本線
- 御茶ノ水駅徒歩9分
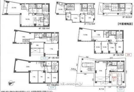
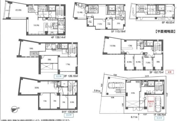
- 間取り/面積
-
- 間取り
- -
- 土地面積
- 193.06m2 / 58.40坪
- 延床面積
- 818.32m2 / 247.54坪
- 延床面積1F
- -
- 延床面積2F
- -
- 延床面積3F
- -
オーナーチェンジ
- 現行利回り、現行収入
-
- 現行利回り
- -
- 現行収入
- -
- 利回り(想定)、想定収入
-
- 利回り(想定)
- -
- 想定収入
- -
- オーナーチェンジ
- オーナーチェンジ物件
- 事業用現況
- 一部賃貸中
- 事業用 引き渡し状態
- -
- 事業用備考
- -
- 所在地
- 東京都文京区本郷3丁目
- 交通
-
東京地下鉄丸ノ内線本郷三丁目駅 徒歩8分
東京都大江戸線本郷三丁目駅 徒歩8分
中央本線御茶ノ水駅 徒歩9分
- 土地面積
- 193.06m2
- 土地面積(坪)
- 58.40坪
- 建物延床面積
- 818.32m2
- 建物延床面積(坪)
- 247.54坪
- 間取り
-
階数 区分 広さ - リフォーム
- -
-
キッチン:-
浴槽:-
トイレ:-
壁:-
床:-
全室:-
その他:-
洗面所:-
給湯器:-
給排水管:-
内装全面:-
外壁:-
屋根:-
その他:- - リノベーション
- -
- - 駐車場
-
- 駐車可能台数
- 有-
- 駐車場所
- -
- 分譲駐車場
- -
- 駐車料金
- -
- 税
- -
- タイプ
- -
- 公共設備
-
- ガス
- -
- 水道
- -
- 汚水
- -
- 雑排水
- -
- 学校区
-
- 小学校区
- -
- 中学校区
- -
- 地目
- 宅地
- 地勢
- 平坦
- 最適用途
- -
- 建ぺい/容積率
- 100%/360%
- 引渡時期
- 相談
- 用途地域
- 商業地域
- - 都市計画
- 市街化区域
- 建築許可理由
- -
- 建築確認番号
- -
- 接道状況 他
-
- 向
- 二方
- 角地
- -
- 公道
- 南
- 幅員
- 5.80m
- 接面
- -
- 公道
- 東
- 幅員
- 6.10m
- 接面
- -
- 私道
-
- 私道
- -
- 持分
- -
- 面積(区分)
- -
- 面積
- -
- 面積(単位)
- -
- セットバック面積
-
- 状態
- -
- 幅
- -
- 面積
- -
- 土地権利
-
- 権利
- 所有権
- 備考
- -
- 借地
-
- 借地期間条件
- -
- 借地権契約期間
- --
- 借地権満了日
- -
- 地代
- -
- 権利金
- -
- 再建築
- -
- 国土法届出
- 不要
- その他制限事項
- 防火地域;景観法;航空法
備考:- - フラット利用
- -
- 手付金保証
- -
- 町会費
- --
- 備考
- ■B1(事務所):賃貸中
1F・2F(保育園):賃貸中 - 取引態様
- 一般
(一社)大阪府宅地建物取引業協会
(公社)近畿地区不動産公正取引協議会加盟
(公社)近畿地区不動産公正取引協議会加盟



