
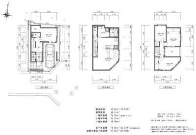
吹田市片山町4丁目
土地:106.40m2
坪数:32.18坪
住まいを想う仕事。
人生を輝かせる使命 という理念を忘れず
この街「大阪北摂」から
お客様の住まいへの想いをかなえる
お手伝いさせていただきます。
【2023年3月最新】住宅に活用できる補助金まとめ
狭くてもテレワークが快適になる「集中できる部屋」の作り方
所有者不明土地解消へー相続登記が義務化!
約100万円で実現!タイニーハウスのメリット・デメリット
住宅の着工が6ヶ月連続で増加!持家が約14%増えた
自宅でサウナが楽しめる家庭用サウナとは?
冬の洗濯を快適にする「浴室乾燥機」を使うメリットとは?
ペットと暮らす家づくり!6つの工夫で安全・快適に